PROJEKT 18I118-C
Umbau des Mischwasserpumpwerkes in Köln
Umbau der technischen Ausrüstung der Maschinen- und EMSR-Technik sowie der Bautechnik des Mischwasserpumpwerkes in Köln.
Besonderheiten/Kenndaten: Umbau im laufenden Betrieb. Mischwasserpumpwerk mit zwei Trockenwetterpumpen und zwei Regenwetterpumpen.

(Anlagengruppe 4 Starkstromanlage,
Anlagengruppe 7.2 verfahrenstechnische
Anlagen & Anlagengruppe 8
Gebäudeautomation)
Ingenieurbauwerke, HOAI 2013, LPH 1 - 9
- Erstellung der Blitzschutzrisikoanalyse
- Erstellung der Gefährdungsbeurteilung
- Erstellung der Betriebsanweisung
- Erstellung des Explosionsschutzdokumentes
- Erstellung der Stromlaufpläne
Beschreibung der Planungsleistungen
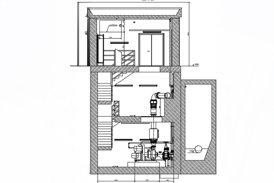
Unser Kunde betreibt und wartet ein unterirdisches Mischwasserpumpwerk. Aufgabe des 1988 unterirdisch erbauten Pumpwerkes mit einem aufgebauten Hochbauteil ist die Zwischenspeicherung und Förderung von zufließendem Mischwasser der Zulaufleitung DN 500 über zwei Druckrohrleitungen aus GGG DN 150 und DN 400 in den unmittelbar neben dem Pumpwerk liegenden Sammler 2.600/2890 in das nachfolgende Kanalnetz.
Aufgrund des Anlagenalters soll das Pumpwerk bau-, maschinen-, rohrleitungs- und EMSR – technisch saniert werden. In Folge der Demontage alter Anlagentechnik und der Montage neuer Anlagentechnik fallen bautechnische Umbaumaßnahmen an.
Maschinen- und Rohrleitungstechnik
- Erneuerung der vorhandenen maschinentechnischen Ausrüstung des PW unter energetischen, sowie betrieblichen Gesichtspunkten
- Erneuerung der Absperrschieber DN 150 und DN 400 in den Sammeldruckrohrleitung (neue elektrische Ausführung)
- Erneuerung der gesamten Rohrleitungs- und Armaturentechnik
- Aufbau eines Pumpenprovisoriums während der Umbauzeit
Elektrotechnik
- Erneuerung der Lüftungstechnik mit Einbau einer zentralen Lüftungsanlage
- Erneuerung der messtechnischen Ausrüstung für das Pumpwerk
- Anbindung der Station an das vorhandene Datenfernübertragungssystem des Kunden mit den neuen Datenpunkten
- Erstellung einer Steuerungsbeschreibung zur Ansteuerung der Gesamtanlage
- Erneuerung der gesamten Schalt- und Kabelanlage für das Pumpwerk
- Herstellen des Potentialausgleichs innerhalb der Anlage, inkl. Prüfprotokollen
- Rückbau und Entsorgung der Netzersatzanlage und zugehöriger Schaltanlage
Bautechnik
- Einbau von 3 Stück Steigebäumen in den Vorschächten zum Einstieg in das Pumpwerk
- Bautechnische Arbeiten (neues Gestell für das Aufstellen der Pumpen, Verschluss der Lüftungsöffnungen der NEA)









